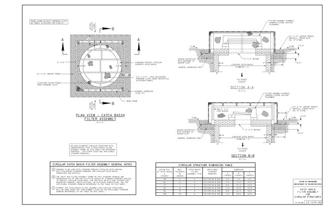
EC-STR-40
CATCH BASIN FILTER ASSEMBLY FOR CIRCULAR STRUCTURESRelated Standard Drawings
| DRAWING | DESCRIPTION | REMARKS |
|---|---|---|
| EC-STR-42 | CATCH BASIN FILTER ASSEMBLY (TYPE 2) | TYPE 2 CATCH BASIN & SLIPCOVER DETAILS |
| EC-STR-42A | CATCH BASIN FILTER ASSEMBLY (TYPE 2) SLIPCOVER DETAILS | TYPE 2 CATCH BASIN & SLIPCOVER DETAILS |
| EC-STR-43 | CATCH BASIN FILTER ASSEMBLY (TYPE 3) | TYPE 3 CATCH BASIN & SLIPCOVER DETAILS |
| EC-STR-43A | CATCH BASIN FILTER ASSEMBLY (TYPE 3) SLIPCOVER DETAILS | TYPE 3 CATCH BASIN & SLIPCOVER DETAILS |
| EC-STR-44 | CATCH BASIN FILTER ASSEMBLY (TYPE 4) | TYPE 4 CATCH BASIN & SLIPCOVER DETAILS |
| EC-STR-44A | CATCH BASIN FILTER ASSEMBLY (TYPE 4) SLIPCOVER DETAILS | TYPE 4 CATCH BASIN & SLIPCOVER DETAILS |
| EC-STR-45 | CATCH BASIN FILTER ASSEMBLY (TYPE 5) | TYPE 5 CATCH BASIN & SLIPCOVER DETAILS |
| EC-STR-45A | CATCH BASIN FILTER ASSEMBLY (TYPE 5) SLIPCOVER DETAILS | TYPE 5 CATCH BASIN & SLIPCOVER DETAILS |
Related Item Numbers
| ITEM NO. | U/M | DESCRIPTION | REMARKS |
|---|---|---|---|
Archived Standard Drawings
| DATES OF EACH ARCHIVED DRAWINGS ( THE INITIAL STANDARD DRAWING IS BOLD ) |
|---|
| 04-15-2004 |
If you find any mistakes, missing information or have a question, contact:
TDOT CADD Support
1200 James K. Polk Building
Nashville, TN 37243-1402
TDOT.CADDSupport@tn.gov
TDOT CADD Support
1200 James K. Polk Building
Nashville, TN 37243-1402
TDOT.CADDSupport@tn.gov
This Page Last Updated: June 6, 2025 at 1:11 PM
