EC-STR-47A
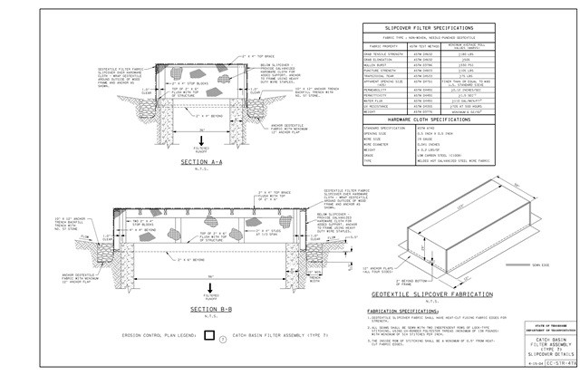
CATCH BASIN FILTER ASSEMBLY (TYPE 7) SLIPCOVER DETAILSRelated Standard Drawings
| DRAWING | DESCRIPTION | REMARKS |
|---|---|---|
Related Item Numbers
| ITEM NO. | U/M | DESCRIPTION | REMARKS |
|---|---|---|---|
Archived Standard Drawings
| DATES OF EACH ARCHIVED DRAWINGS ( THE INITIAL STANDARD DRAWING IS BOLD ) |
|---|
| 04-15-2004 |
If you find any mistakes, missing information or have a question, contact:
TDOT CADD Support
1200 James K. Polk Building
Nashville, TN 37243-1402
TDOT.CADDSupport@tn.gov
TDOT CADD Support
1200 James K. Polk Building
Nashville, TN 37243-1402
TDOT.CADDSupport@tn.gov
This Page Last Updated: July 12, 2024 at 11:37 AM
