EC-STR-55
GABION CHECK DAMRelated Standard Drawings
| DRAWING | DESCRIPTION | REMARKS |
|---|---|---|
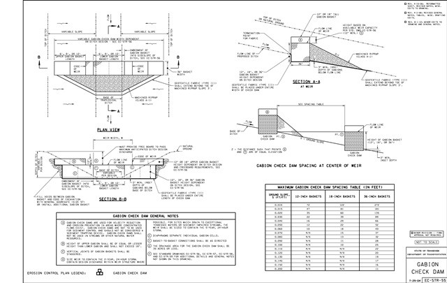
| EC-STR-56 | GABION CHECK DAM DESIGN TABLES | FOR ADDITIONAL DETAILS AND GENERAL NOTES NOT SHOWN ON DRAWING |
| EC-STR-57 | GABION ASSEMBLY DETAILS | FOR ADDITIONAL DETAILS AND GENERAL NOTES NOT SHOWN ON DRAWING |
| EC-STR-58 | GABION ASSEMBLY DETAILS | FOR ADDITIONAL DETAILS AND GENERAL NOTES NOT SHOWN ON DRAWING |
| EC-STR-59 | GABION CHECK DAM GENERAL NOTES AND COMPONENT PROPERTIES | FOR ADDITIONAL DETAILS AND GENERAL NOTES NOT SHOWN ON DRAWING |
Related Item Numbers
| ITEM NO. | U/M | DESCRIPTION | REMARKS |
|---|---|---|---|
Archived Standard Drawings
| DATES OF EACH ARCHIVED DRAWINGS ( THE INITIAL STANDARD DRAWING IS BOLD ) |
|---|
| 07-29-2004 | 04-15-2006 | 04-01-2008 | 08-01-2012 |
If you find any mistakes, missing information or have a question, contact:
TDOT CADD Support
1200 James K. Polk Building
Nashville, TN 37243-1402
TDOT.CADDSupport@tn.gov
TDOT CADD Support
1200 James K. Polk Building
Nashville, TN 37243-1402
TDOT.CADDSupport@tn.gov
This Page Last Updated: June 6, 2025 at 1:11 PM
