EC-STR-2
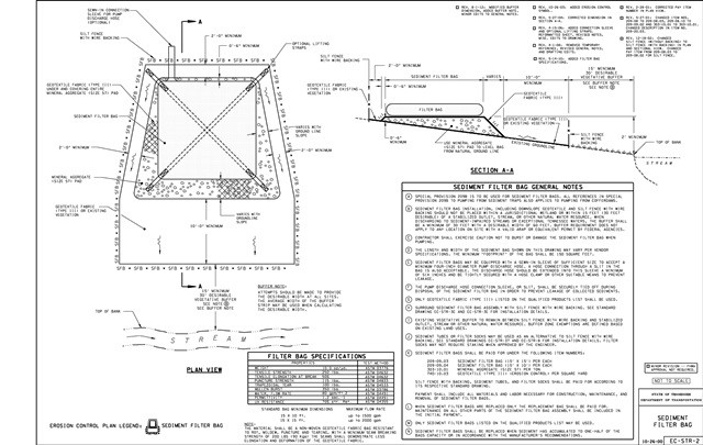
SEDIMENT FILTER BAGRelated Standard Drawings
| DRAWING | DESCRIPTION | REMARKS |
|---|---|---|
| EC-STR-3C | SILT FENCE WITH WIRE BACKING | SEE STANDARD DRAWING FOR INSTALLATION DETAILS |
| EC-STR-3E | SILT FENCE FABRIC JOINING DETAILS | SEE STANDARD DRAWING FOR INSTALLATION DETAILS |
| EC-STR-8 | FILTER SOCK | SEE STANDARD DRAWING FOR INSTALLATION DETAILS |
| EC-STR-37 | SEDIMENT TUBE | SEE STANDARD DRAWING FOR INSTALLATION DETAILS |
Related Item Numbers
| ITEM NO. | U/M | DESCRIPTION | REMARKS |
|---|---|---|---|
| 209-09.03 | EACH | SEDIMENT FILTER BAG (15' X 15') | |
| 209-09.04 | EACH | SEDIMENT FILTER BAG(15' X 10') | |
| 303-10.01 | TON | MINERAL AGGREGATE (SIZE 57) | |
| 740-10.03 | S.Y. | GEOTEXTILE (TYPE III)(EROSION CONTROL) |
Archived Standard Drawings
| DATES OF EACH ARCHIVED DRAWINGS ( THE INITIAL STANDARD DRAWING IS BOLD ) |
|---|
| 10-26-2000 | 02-28-2001 | 05-27-2001 | 12-18-2002 | 10-26-2003 | 05-27-2004 | 04-15-2006 | 04-01-2008 | 05-14-2010 | 08-01-2012 |
If you find any mistakes, missing information or have a question, contact:
TDOT CADD Support
1200 James K. Polk Building
Nashville, TN 37243-1402
TDOT.CADDSupport@tn.gov
TDOT CADD Support
1200 James K. Polk Building
Nashville, TN 37243-1402
TDOT.CADDSupport@tn.gov
This Page Last Updated: June 6, 2025 at 1:11 PM
