RD01-SD-4
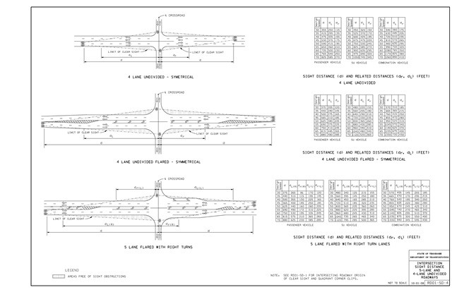
INTERSECTION SIGHT DISTANCE 5-LANE AND 4-LANE UNDIVIDED ROADWAYSRelated Standard Drawings
| DRAWING | DESCRIPTION | REMARKS |
|---|---|---|
| RD01-SD-1 | INTERSECTION SIGHT DISTANCE DESIGN AND GENERAL NOTES | INTERSECTION ROADWAY ORIGIN OF CLEAR SIGHT & QUANDRANT CORNER CLIPS |
Related Item Numbers
| ITEM NO. | U/M | DESCRIPTION | REMARKS |
|---|---|---|---|
Archived Standard Drawings
| DATES OF EACH ARCHIVED DRAWINGS ( THE INITIAL STANDARD DRAWING IS BOLD ) |
|---|
| 10-01-2008 |
This Page Last Updated: June 6, 2025 at 1:11 PM
