D-CB-38S
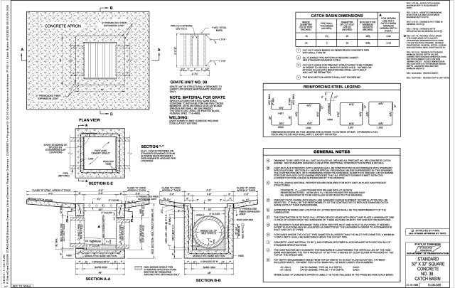
STANDARD 32" X 32" SQUARE CONCRETE NO. 38 CATCH BASINRelated Standard Drawings
| DRAWING | DESCRIPTION | REMARKS |
|---|---|---|
| D-CB-99 | MISCELLANEOUS DETAILS FOR RECTANGULAR STRUCTURES | REINFORCEMENT REQUIREMENTS AROUND PIPE OPENINGS |
| D-PB-2 | STANDARD DETAILS FOR FLEXIBLE PIPE INSTALLATION | GASKET DETAILS FOR FLEXIBLE PIPE |
Related Item Numbers
| ITEM NO. | U/M | DESCRIPTION | REMARKS |
|---|---|---|---|
| 611-38.01 | EACH | CATCH BASINS, TYPE 38, 0' - 4' DEPTH | |
| 611-38.02 | EACH | CATCH BASINS, TYPE 38, > 4' - 8' DEPTH | |
Archived Standard Drawings
| DATES OF EACH ARCHIVED DRAWINGS ( THE INITIAL STANDARD DRAWING IS BOLD ) |
|---|
| 01-19-1998 | 05-27-1999 | 05-30-2001 | 06-10-2001 | 07-29-2002 | 08-01-2012 | 05-15-2018 | 02-20-2020 | 03-04-2021 |
If you find any mistakes, missing information or have a question, contact:
TDOT CADD Support
1200 James K. Polk Building
Nashville, TN 37243-1402
TDOT.CADDSupport@tn.gov
TDOT CADD Support
1200 James K. Polk Building
Nashville, TN 37243-1402
TDOT.CADDSupport@tn.gov
This Page Last Updated: June 6, 2025 at 1:11 PM
