RD-UD-6

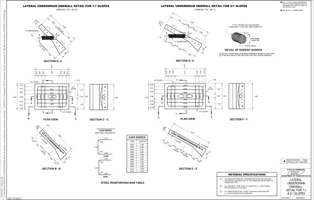
LATERAL UNDERDRAIN ENDWALL DETAIL FOR 1:1 & 2:1 SLOPES
RD-UD-6

(Click image to open PDF)

Related Standard Drawings

DRAWING DESCRIPTION REMARKS
     
     
     

Related Item Numbers

ITEM NO. U/M DESCRIPTION REMARKS
710-06.10 EACH LATERAL UNDERDRAIN ENDWALL (1:1)  
710-06.11 EACH LATERAL UNDERDRAIN ENDWALL (2:1)  
       

Archived Standard Drawings

DATES OF EACH ARCHIVED DRAWINGS ( THE INITIAL STANDARD DRAWING IS BOLD )
10-26-1994 | 12-18-1994 | 06-28-2019

This Page Last Updated: July 2, 2024 at 10:19 AM