D-CBB-12B
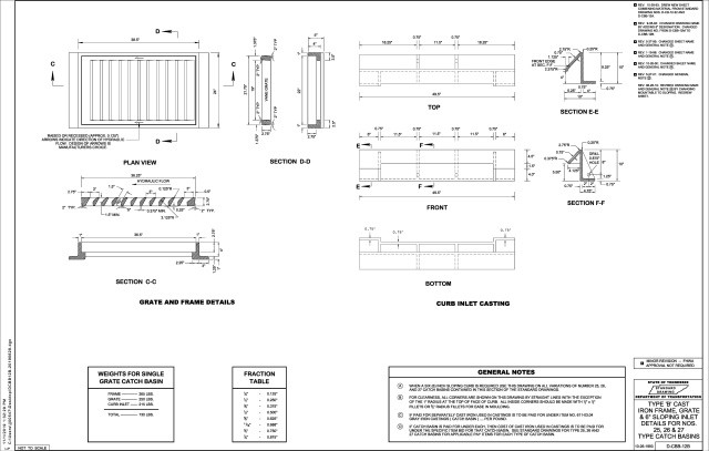
TYPE "B" CAST IRON FRAME, GRATE & 6" SLOPING INLET DETAILS FOR NOS. 25, 26 & 27 TYPE CATCH BASINSRelated Standard Drawings
| DRAWING | DESCRIPTION | REMARKS |
|---|---|---|
| D-CB-25S | STANDARD RECTANGULAR CONCRETE NO. 25 CATCH BASIN (FOR USE WITH 6" SLOPING CURB) | FOR APPLICABLE PAY ITEMS FOR EACH TYPE OF CATCH BASIN |
| D-CB-26S | STANDARD RECTANGULAR CONCRETE NO. 26 CATCH BASIN (FOR USE WITH 6" SLOPING CURB) | FOR APPLICABLE PAY ITEMS FOR EACH TYPE OF CATCH BASIN |
| D-CB-27S | STANDARD RECTANGULAR CONCRETE NO. 27 CATCH BASIN (FOR USE WITH 6" SLOPING CURB) | FOR APPLICABLE PAY ITEMS FOR EACH TYPE OF CATCH BASIN |
Related Item Numbers
| ITEM NO. | U/M | DESCRIPTION | REMARKS |
|---|---|---|---|
| 611-03.04 | LB. | GRAY IRON CASTINGS (CATCH BASIN) | |
Archived Standard Drawings
| DATES OF EACH ARCHIVED DRAWINGS ( THE INITIAL STANDARD DRAWING IS BOLD ) |
|---|
| 10-26-1993 | 09-05-1994 | 05-27-1995 | 01-19-1996 | 10-26-2000 | 05-27-2001 | 06-28-2019 |
If you find any mistakes, missing information or have a question, contact:
TDOT CADD Support
1200 James K. Polk Building
Nashville, TN 37243-1402
TDOT.CADDSupport@tn.gov
TDOT CADD Support
1200 James K. Polk Building
Nashville, TN 37243-1402
TDOT.CADDSupport@tn.gov
This Page Last Updated: June 6, 2025 at 1:11 PM
