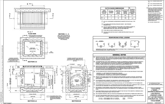
D-CB-10LPC
LOW PROFILE LOWERED CURB 32" X 26" RECTANGULAR CONCRETE NO. 10LPC CATCH BASINRelated Standard Drawings
| DRAWING | DESCRIPTION | REMARKS |
|---|---|---|
| D-CB-99 | MISCELLANEOUS DETAILS FOR RECTANGULAR STRUCTURES | REINFORCEMENT REQUIREMENTS AROUND PIPE OPENINGS |
| D-CBB-12A | TYPE "B" CAST IRON FRAME, GRATE & NONMOUNTABLE INLET DETAILS FOR NOS. 10, 12, 14, 16, AND 17 TYPE CATCH BASINS | CAST IRON GRATES, FRAMES, AND CURB INLET DETAILS |
| D-PB-2 | STANDARD DETAILS FOR FLEXIBLE PIPE INSTALLATION | FLEXIBLE PIPE DETAILS |
| D-RF-1 | STANDARD PRECAST RISER | PRECAST CONCRETE RISER FRAMES |
| RP-VC-10 | VERTICAL CONCRETE CURBS AND CONCRETE CURBS AND GUTTERS | CURB & GUTTER DETAILS |
| RP-VC-11 | VERTICAL CONCRETE CURBS AND GUTTERS 6" AND 7" DEPTH | CURB & GUTTER DETAILS |
Related Item Numbers
| ITEM NO. | U/M | DESCRIPTION | REMARKS |
|---|---|---|---|
| 611-10.01 | EACH | CATCH BASINS, TYPE 10, 0' - 4' DEPTH | |
| 611-10.02 | EACH | CATCH BASINS, TYPE 10, > 4' - 8' DEPTH | |
Archived Standard Drawings
| DATES OF EACH ARCHIVED DRAWINGS ( THE INITIAL STANDARD DRAWING IS BOLD ) |
|---|
| 02-28-2002 | 09-11-2002 | 04-15-2003 | 07-29-2004 | 08-01-2012 | 05-15-2018 | 02-20-2020 |
This Page Last Updated: June 6, 2025 at 1:11 PM
