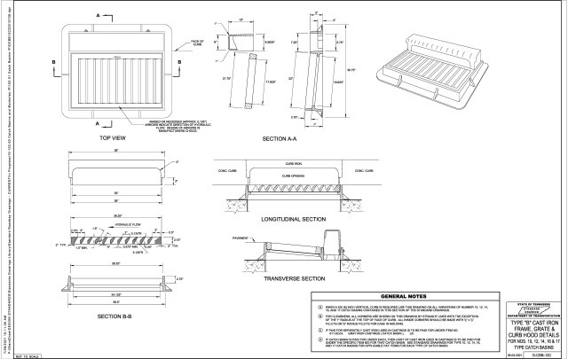
D-CBB-12C

TYPE “B” CAST IRON FRAME, GRATE & CURB HOOD DETAILS NOR NOS. 10, 12, 14, 16, 17 TYPE CATCH BASINS
D-CBB-12C

(Click image to open PDF)

Latest Revision Note

06/03/2021    NEW STANDARD DRAWING

Related Standard Drawings

DRAWING DESCRIPTION REMARKS
D-CB-10LPC LOW PROFILE LOWERED CURB 32" X 26" RECTANGULAR CONCRETE NO. 10LPC CATCH BASIN SEE STANDARD DRAWINGS FOR TYPE 10, 12, 14, 16, AND 17 CATCH BASINS FOR APPLICABLE PAY ITEMS FOR EACH TYPE OF CATCH BASIN.
D-CB-10RA STANDARD PRECAST 48" CIRCULAR NO. 10 CATCH BASIN FOR USE WITH 6" VERTICAL CURB SEE STANDARD DRAWINGS FOR TYPE 10, 12, 14, 16, AND 17 CATCH BASINS FOR APPLICABLE PAY ITEMS FOR EACH TYPE OF CATCH BASIN.
D-CB-10S STANDARD RECTANGULAR CONCRETE NO. 10 CATCH BASIN SEE STANDARD DRAWINGS FOR TYPE 10, 12, 14, 16, AND 17 CATCH BASINS FOR APPLICABLE PAY ITEMS FOR EACH TYPE OF CATCH BASIN.
D-CB-10SB STANDARD 4' X 4' SQUARE CONCRETE NO. 10 CATCH BASIN SEE STANDARD DRAWINGS FOR TYPE 10, 12, 14, 16, AND 17 CATCH BASINS FOR APPLICABLE PAY ITEMS FOR EACH TYPE OF CATCH BASIN.
D-CB-12LP LOW PROFILE 32" X 32" SQUARE CONCRETE NO. 12LP CATCH BASIN FOR USE WITH 6" VERTICAL CURB SEE STANDARD DRAWINGS FOR TYPE 10, 12, 14, 16, AND 17 CATCH BASINS FOR APPLICABLE PAY ITEMS FOR EACH TYPE OF CATCH BASIN.
D-CB-12P STANDARD PRECAST RECTANGULAR CONCRETE NO.12 CATCH BASIN SEE STANDARD DRAWINGS FOR TYPE 10, 12, 14, 16, AND 17 CATCH BASINS FOR APPLICABLE PAY ITEMS FOR EACH TYPE OF CATCH BASIN.
D-CB-12RA STANDARD PRECAST 48" CIRCULAR NO. 12 CATCH BASIN FOR USE WITH 6" VERTICAL CURB SEE STANDARD DRAWINGS FOR TYPE 10, 12, 14, 16, AND 17 CATCH BASINS FOR APPLICABLE PAY ITEMS FOR EACH TYPE OF CATCH BASIN.
D-CB-12RB STANDARD PRECAST 60" AND 72" CIRCULAR NO. 12 CATCH BASIN FOR USE WITH 6" VERTICAL CURB SEE STANDARD DRAWINGS FOR TYPE 10, 12, 14, 16, AND 17 CATCH BASINS FOR APPLICABLE PAY ITEMS FOR EACH TYPE OF CATCH BASIN.
D-CB-12RC STANDARD PRECAST 84" THRU 120" CIRCULAR NO. 12 CATCH BASIN FOR USE WITH 6" VERTICAL CURB SEE STANDARD DRAWINGS FOR TYPE 10, 12, 14, 16, AND 17 CATCH BASINS FOR APPLICABLE PAY ITEMS FOR EACH TYPE OF CATCH BASIN.
D-CB-12S STANDARD RECTANGULAR CONCRETE NO. 12 CATCH BASIN SEE STANDARD DRAWINGS FOR TYPE 10, 12, 14, 16, AND 17 CATCH BASINS FOR APPLICABLE PAY ITEMS FOR EACH TYPE OF CATCH BASIN.
D-CB-12SB STANDARD 4' X 4' SQUARE CONCRETE NO. 12 CATCH BASIN SEE STANDARD DRAWINGS FOR TYPE 10, 12, 14, 16, AND 17 CATCH BASINS FOR APPLICABLE PAY ITEMS FOR EACH TYPE OF CATCH BASIN.
D-CB-12SC STANDARD 5' 2" X 5' 2" SQUARE CONCRETE NO. 12 CATCH BASIN SEE STANDARD DRAWINGS FOR TYPE 10, 12, 14, 16, AND 17 CATCH BASINS FOR APPLICABLE PAY ITEMS FOR EACH TYPE OF CATCH BASIN.
D-CB-12SD STANDARD 7' X 7' SQUARE CONCRETE NO. 12 CATCH BASIN SEE STANDARD DRAWINGS FOR TYPE 10, 12, 14, 16, AND 17 CATCH BASINS FOR APPLICABLE PAY ITEMS FOR EACH TYPE OF CATCH BASIN.
D-CB-12SE STANDARD 9' X 9' SQUARE CONCRETE NO. 12 CATCH BASIN SEE STANDARD DRAWINGS FOR TYPE 10, 12, 14, 16, AND 17 CATCH BASINS FOR APPLICABLE PAY ITEMS FOR EACH TYPE OF CATCH BASIN.
D-CB-14P STANDARD PRECAST RECTANGULAR CONCRETE NO. 14 CATCH BASIN SEE STANDARD DRAWINGS FOR TYPE 10, 12, 14, 16, AND 17 CATCH BASINS FOR APPLICABLE PAY ITEMS FOR EACH TYPE OF CATCH BASIN.
D-CB-14RB STANDARD PRECAST CIRCULAR NO. 14RB CATCH BASIN SEE STANDARD DRAWINGS FOR TYPE 10, 12, 14, 16, AND 17 CATCH BASINS FOR APPLICABLE PAY ITEMS FOR EACH TYPE OF CATCH BASIN.
D-CB-14S STANDARD RECTANGULAR CONCRETE NO. 14 CATCH BASIN SEE STANDARD DRAWINGS FOR TYPE 10, 12, 14, 16, AND 17 CATCH BASINS FOR APPLICABLE PAY ITEMS FOR EACH TYPE OF CATCH BASIN.
D-CB-14SE STANDARD 9' X 9' SQUARE CONCRETE NO. 14 CATCH BASIN SEE STANDARD DRAWINGS FOR TYPE 10, 12, 14, 16, AND 17 CATCH BASINS FOR APPLICABLE PAY ITEMS FOR EACH TYPE OF CATCH BASIN.
D-CB-16S STANDARD RECTANGULAR CONCRETE NO. 16 CATCH BASIN SEE STANDARD DRAWINGS FOR TYPE 10, 12, 14, 16, AND 17 CATCH BASINS FOR APPLICABLE PAY ITEMS FOR EACH TYPE OF CATCH BASIN.
D-CB-17S STANDARD RECTANGULAR CONCRETE NO. 17 CATCH BASIN SEE STANDARD DRAWINGS FOR TYPE 10, 12, 14, 16, AND 17 CATCH BASINS FOR APPLICABLE PAY ITEMS FOR EACH TYPE OF CATCH BASIN.

Related Item Numbers

ITEM NO. U/M DESCRIPTION REMARKS
611-03.04 LB. GRAY IRON CASTINGS (CATCH BASIN)  
       
       

Archived Standard Drawings

DATES OF EACH ARCHIVED DRAWINGS ( THE INITIAL STANDARD DRAWING IS BOLD )
09-05-1994 | 05-27-1995 | 01-19-1996 | 05-27-2001

This Page Last Updated: December 19, 2025 at 11:01 AM