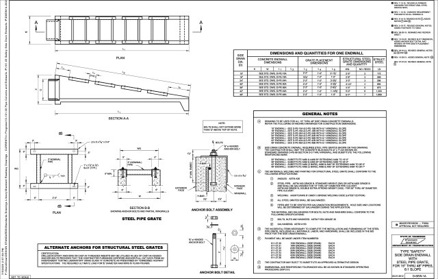
D-SEW-1A

TYPE "SAFETY" SIDE DRAIN ENDWALL WITH STEEL PIPE GRATE, FOR 15" THRU 48" PIPES, 6:1 SLOPE
D-SEW-1A

(Click image to open PDF)

Latest Revision Note

07/07/2023    REVISED GENERAL NOTE (D).

Related Standard Drawings

DRAWING DESCRIPTION REMARKS
D-PE-15A
TYPE "U" CROSS DRAIN ENDWALL FOR 15" PIPE FOR 3:1, 4:1 & 6:1 SLOPES) ENDWALL DIMENSIONS & QUANTITIES
D-PE-15B TYPE "U" CROSS DRAIN ENDWALL FOR 15" PIPE, BILL OF STEEL AND PRECAST NOTES ENDWALL DIMENSIONS & QUANTITIES
D-PE-18A
TYPE "U" CROSS DRAIN ENDWALL FOR 18" PIPE FOR 3:1, 4:1 & 6:1 SLOPES) ENDWALL DIMENSIONS & QUANTITIES
D-PE-18B TYPE "U" CROSS DRAIN ENDWALL FOR 18" PIPE, BILL OF STEEL AND PRECAST NOTES ENDWALL DIMENSIONS & QUANTITIES
D-PE-24A
TYPE "U" CROSS DRAIN ENDWALL FOR 24" PIPE FOR 3:1, 4:1 & 6:1 SLOPES) ENDWALL DIMENSIONS & QUANTITIES
D-PE-24B TYPE "U" CROSS DRAIN ENDWALL FOR 24" PIPE, BILL OF STEEL AND PRECAST NOTES ENDWALL DIMENSIONS & QUANTITIES
D-PE-30A
TYPE "U" CROSS DRAIN ENDWALL FOR 30" PIPE FOR 3:1, 4:1 & 6:1 SLOPES) ENDWALL DIMENSIONS & QUANTITIES
D-PE-30B TYPE "U" CROSS DRAIN ENDWALL FOR 30" PIPE, BILL OF STEEL AND PRECAST NOTES ENDWALL DIMENSIONS & QUANTITIES
D-PE-36A
TYPE "U" CROSS DRAIN ENDWALL FOR 36" PIPE FOR 3:1, 4:1 & 6:1 SLOPES) ENDWALL DIMENSIONS & QUANTITIES
D-PE-36B TYPE "U" CROSS DRAIN ENDWALL FOR 36" PIPE, BILL OF STEEL AND PRECAST NOTES ENDWALL DIMENSIONS & QUANTITIES
D-PE-42A
TYPE "U" CROSS DRAIN ENDWALL FOR 42" PIPE FOR 3:1, 4:1 & 6:1 SLOPES) ENDWALL DIMENSIONS & QUANTITIES
D-PE-42B TYPE "U" CROSS DRAIN ENDWALL FOR 42" PIPE, BILL OF STEEL AND PRECAST NOTES ENDWALL DIMENSIONS & QUANTITIES
D-PE-48A
TYPE "U" CROSS DRAIN ENDWALL FOR 48" PIPE FOR 3:1, 4:1 & 6:1 SLOPES) ENDWALL DIMENSIONS & QUANTITIES
D-PE-48B TYPE "U" CROSS DRAIN ENDWALL FOR 48" PIPE, BILL OF STEEL AND PRECAST NOTES ENDWALL DIMENSIONS & QUANTITIES
D-PE-99
TYPE "U" CROSS DRAIN ENDWALL DETAILS, PIPE GRATE & SKEWED CONNECTION THE CONTRACTOR SHALL OMIT THE CONCRETE BLOCKOUTS (4" x 7") AS SHOWN ON STANDARD DRAWING

Related Item Numbers

ITEM NO. U/M DESCRIPTION
611-07.30 EACH 15IN ENDWALL (SIDE DRAIN)
611-07.31 EACH 18IN ENDWALL (SIDE DRAIN)
611-07.32 EACH 24IN ENDWALL (SIDE DRAIN)
611-07.33 EACH 30IN ENDWALL (SIDE DRAIN)
611-07.34 EACH 36IN ENDWALL (SIDE DRAIN)
611-07.35 EACH 42IN ENDWALL (SIDE DRAIN)
611-07.36 EACH 48IN ENDWALL (SIDE DRAIN)

Archived Standard Drawings

DATES OF EACH ARCHIVED DRAWINGS ( THE INITIAL STANDARD DRAWING IS BOLD )
03-01-2012 | 07-10-2012 | 01-10-2013 | 06-14-2013 | 06-28-2019 | 10-16-2020 | 03-04-2021 | 10-29-2021 | 07-07-2023

This Page Last Updated: June 6, 2025 at 1:11 PM