D-PE-18A
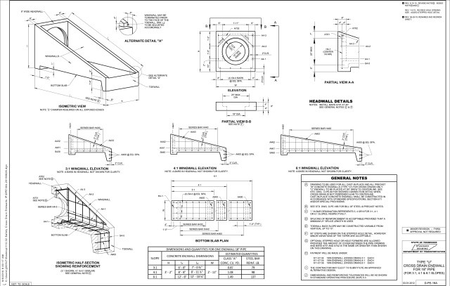
TYPE "U" CROSS DRAIN ENDWALL FOR 18" PIPE (FOR 3:1, 4:1 & 6:1 SLOPES)Related Standard Drawings
| DRAWING | DESCRIPTION | REMARKS |
|---|---|---|
| D-PE-18B | TYPE "U" CROSS DRAIN ENDWALL FOR 18" PIPE, BILL OF STEEL AND PRECAST NOTES | BILL OF STEEL & PRECAST NOTES |
| D-PE-99 | TYPE "U" CROSS DRAIN ENDWALL DETAILS, PIPE GRATE & SKEWED CONNECTION | DETAILS FOR SKEWED CONNECTIONS |
Related Item Numbers
| ITEM NO. | U/M | DESCRIPTION | REMARKS |
|---|---|---|---|
| 611-07.54 | EACH | 18IN ENDWALL (CROSS DRAIN) 3:1 | |
| 611-07.55 | EACH | 18IN ENDWALL (CROSS DRAIN) 4:1 | |
| 611-07.56 | EACH | 18IN ENDWALL (CROSS DRAIN) 6:1 |
Archived Standard Drawings
| DATES OF EACH ARCHIVED DRAWINGS ( THE INITIAL STANDARD DRAWING IS BOLD ) |
|---|
| 03-01-2012 | 06-14-2013 | 01-06-2015 | 06-28-2019 |
This Page Last Updated: June 6, 2025 at 1:11 PM
