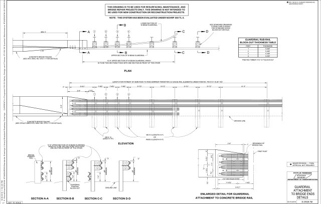
S-GR28-7M
GUARDRAIL ATTACHMENT TO BRIDGE ENDS DETAILSRelated Standard Drawings
| DRAWING | DESCRIPTION | REMARKS |
|---|---|---|
| S-GR28-2M |
GUARDRAIL HARDWARE DETAILS |
FOR STANDARD WOOD BLOCK-OUT DETAILS |
| S-GR28-6M |
GUARDRAIL ATTACHMENT TO CONCRETE DECKS |
FOR STANDARD WOOD BLOCK-OUT DETAILS |
| STD-1-1 |
BRIDGE RAILING CONCRETE PARAPET 1990 |
FOR ADDITIONAL DETAILS |
Related Item Numbers
| ITEM NO. | U/M | DESCRIPTION | REMARKS |
|---|---|---|---|
| 705-01.01 |
LF |
GUARDRAIL AT BRIDGE ENDS |
|
| DATES OF EACH ARCHIVED DRAWINGS ( THE INITIAL STANDARD DRAWING IS BOLD ) |
|---|
| 03-15-2018 | 06-28-2019 |
If you find any mistakes, missing information or have a question, contact:
TDOT CADD Support
1200 James K. Polk Building
Nashville, TN 37243-1402
TDOT.CADDSupport@tn.gov
TDOT CADD Support
1200 James K. Polk Building
Nashville, TN 37243-1402
TDOT.CADDSupport@tn.gov
This Page Last Updated: August 7, 2025 at 4:52 PM
