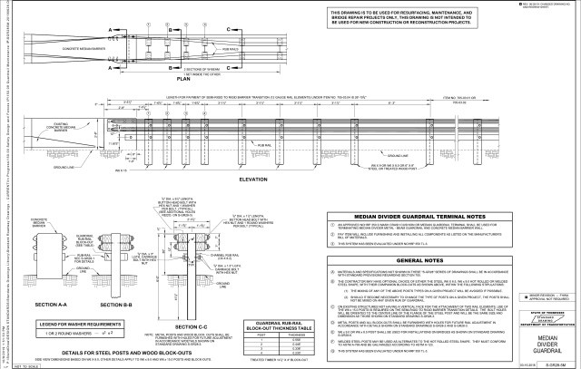
S-GR28-5M
MEDIAN DIVIDER GUARDRAILRelated Standard Drawings
| DRAWING | DESCRIPTION | REMARKS |
|---|---|---|
| S-GR28-1M |
W-BEAM & THRIE BEAM BARRIER RAIL AND RUB RAIL DETAILS |
FOR ADDITIONAL DETAILS |
| S-GR28-2M |
GUARDRAIL HARDWARE DETAILS |
FOR FUTURE RAIL ADJUSTMENT |
| S-GR28-3M |
GUARDRAIL HEIGHT ADJUSTMENT |
FOR FUTURE RAIL ADJUSTMENT |
| S-GR28-6M |
GUARDRAIL ATTACHMENT TO CONCRETE DECKS |
FOR INSTALLATIONS ON BRIDGES |
Related Item Numbers
| ITEM NO. | U/M | DESCRIPTION | REMARKS |
|---|---|---|---|
| 705-03.01 |
LF | MEDIAN DIVIDER GUARDRAIL, WITH RUB-RAIL (TYPE 2) |
|
| 705-03.02 |
LF | MEDIAN DIVIDER GUARDRAIL (TYPE 2) |
|
| 705-03.04 |
LF | MEDIAN DIVIDER GUARDRAIL AT CONCRETE BARRIER |
Archived Standard Drawings
| DATES OF EACH ARCHIVED DRAWINGS ( THE INITIAL STANDARD DRAWING IS BOLD ) |
|---|
| 03-15-18 | 06-28-2019 |
If you find any mistakes, missing information or have a question, contact:
TDOT CADD Support
1200 James K. Polk Building
Nashville, TN 37243-1402
TDOT.CADDSupport@tn.gov
TDOT CADD Support
1200 James K. Polk Building
Nashville, TN 37243-1402
TDOT.CADDSupport@tn.gov
This Page Last Updated: August 7, 2025 at 4:52 PM
