D-PE-9
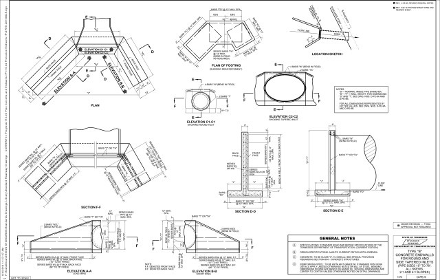
TYPE "B" CONCRETE ENDWALLS FOR ROUND AND SIDE TAPERED INLETS (PIPE SIZES 15" TO 78", ALL SKEWS, 2:1 AND 4:1 SLOPES)Related Standard Drawings
| DRAWING | DESCRIPTION | REMARKS |
|---|---|---|
| D-PE-9A | TYPE "B" CONCRETE ENDWALLS FOR ROUND INLETS, DETAILS & QUANTITIES (PIPE SIZES 15" TO 78", ALL SKEWS, 2:1 AND 4:1 SLOPES) | FOR ALL DIMENSIONS |
| D-PE-9B | TYPE "B" CONCRETE ENDWALLS FOR SIDE TAPER INLETS, DETAILS & QUANTITIES (PIPE SIZES 15" TO 78", ALL SKEWS, 2:1 AND 4:1 SLOPES) | FOR ALL DIMENSIONS |
Related Item Numbers
| ITEM NO. | U/M | DESCRIPTION | REMARKS |
|---|---|---|---|
Archived Standard Drawings
| DATES OF EACH ARCHIVED DRAWINGS ( THE INITIAL STANDARD DRAWING IS BOLD ) |
|---|
| 1976 | 04-25-1990 |06-28-2019 |
This Page Last Updated: June 6, 2025 at 1:11 PM
