D-FLU-2
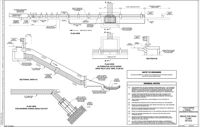
BRIDGE END DRAIN FLUME DETAILSLatest Revision Note
XX/XX/20XX NEW STANDARD DRAWING
Related Standard Drawings
| DRAWING | DESCRIPTION | REMARKS |
|---|---|---|
| D-CB-10S | STANDARD RECTANGULAR CONCRETE NO. 10 CATCH BASIN | FOR ADDITIONAL CONSTRUCTION NOTES AND DETAILS |
| D-CB-DI | ALTERNATE CATCH BASIN DROP INLET DETAILS | FOR ADDITIONAL CONSTRUCTION NOTES AND DETAILS |
| D-FLU-2A | BRIDGE END DRAIN FLUME DETAILS | FOR BRIDGE END DRAIN ALTERNATIVE DESIGN |
| D-PB-1 | STANDARD DETAILS FOR CONCRETE PIPE INSTALLATION | FOR PIPE INSTALLATION STANDARD DETAILS |
| D-PB-2 | STANDARD DETAILS FOR FLEXIBLE PIPE INSTALLATION | FOR PIPE INSTALLATION STANDARD DETAILS |
| D-PE SERIES | Pipe Culverts and Endwalls → SAFETY CROSS DRAIN ENDWALLS | FOR TYPE "U" CROSS DRAIN ENDWALL OR PROTECTED ENDWALL |
| RP-VC-10 | VERTICAL CONCRETE CURBS AND CURB AND GUTTER (FOR 8" TO 12" GUTTER DEPTH) | FOR CURB AND CURB AND GUTTER DETAILS |
| S-GR31 SERIES | Safety Design and Guardrails → GUARDRAIL DETAILS | FOR POSTS, RAIL, AND HARDWARE STANDARDS FOR CONSTRUCTION |
| S-GRC SERIES | Safety Design and Guardrails → GUARDRAIL CONNECTIONS | FOR CONNECTING TO BRIDGE RAIL OR OTHER CONCRETE BARRIER FOR DETAILS |
Related Item Numbers
| ITEM NO. | U/M | DESCRIPTION |
|---|---|---|
Archived Standard Drawings
| DATES OF EACH ARCHIVED DRAWINGS ( THE INITIAL STANDARD DRAWING IS BOLD ) |
|---|
| 07-07-2023 |
This Page Last Updated: June 6, 2025 at 1:11 PM
